Available for Sublease - Sub-Landlord is open to customizing incentives!

This retail space is located in the heart of Osborne Village, one of Winnipeg’s most active neighborhoods. Currently home to an e-shop retail store, the unit is well-suited for a variety of retail or service-based uses. Take advantage of steady foot traffic from the surrounding businesses, residential density, and the area’s strong community feel.

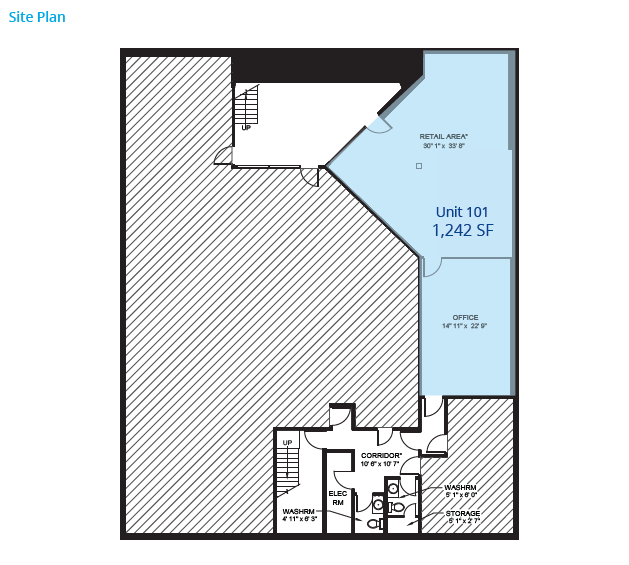
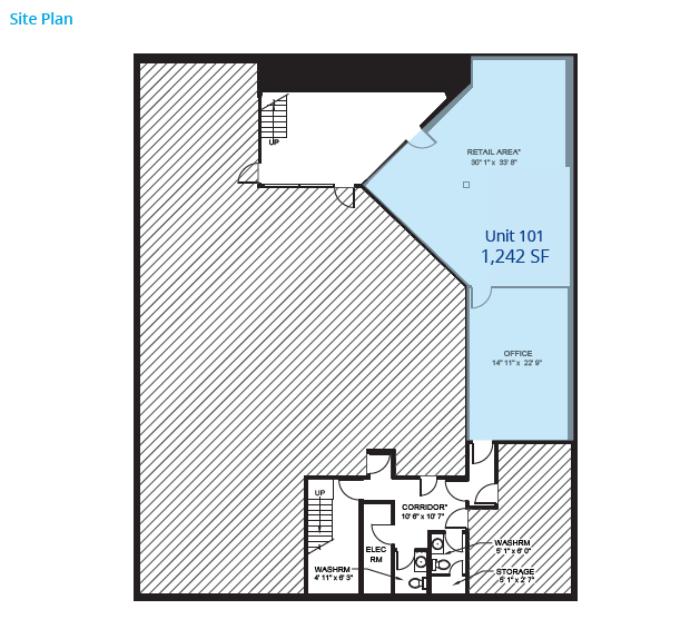
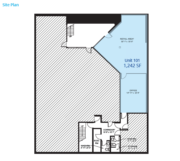
  • Floor Space 1242 sqft
  • Land Size 0.15 acres
  • Property Type Commercial, Retail Space for Lease