- Prominent and high visibility location just south of St Norberts Farmers Market
- 30,000 vehicles pass by on a daily basis
- Signage opportunities
- Abundant parking
- Close to UofM, College St Norbert Collegiate and high density residential
- Ideally suited for insurance, chiro, physio, salon, gym, etc.

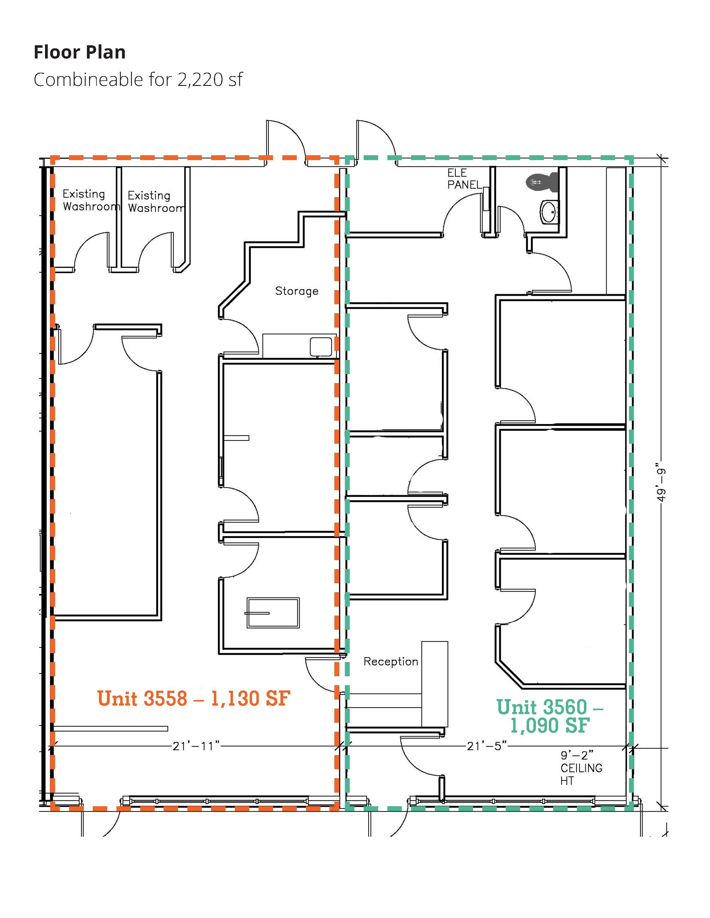
  • Floor Space 1090 sqft
  • Land Size 1.00 acres
  • Property Type Commercial, Retail Space for Lease