Taylor Toni
Taylor Toni Personal Real Estate Corporation
Office: (204) 255-4204 Mobile: (204) 479-1049taylor@dycktoni.com
RE/MAX Performance Realty
942 St. Mary's Road, Winnipeg, MB, R2M 3R5
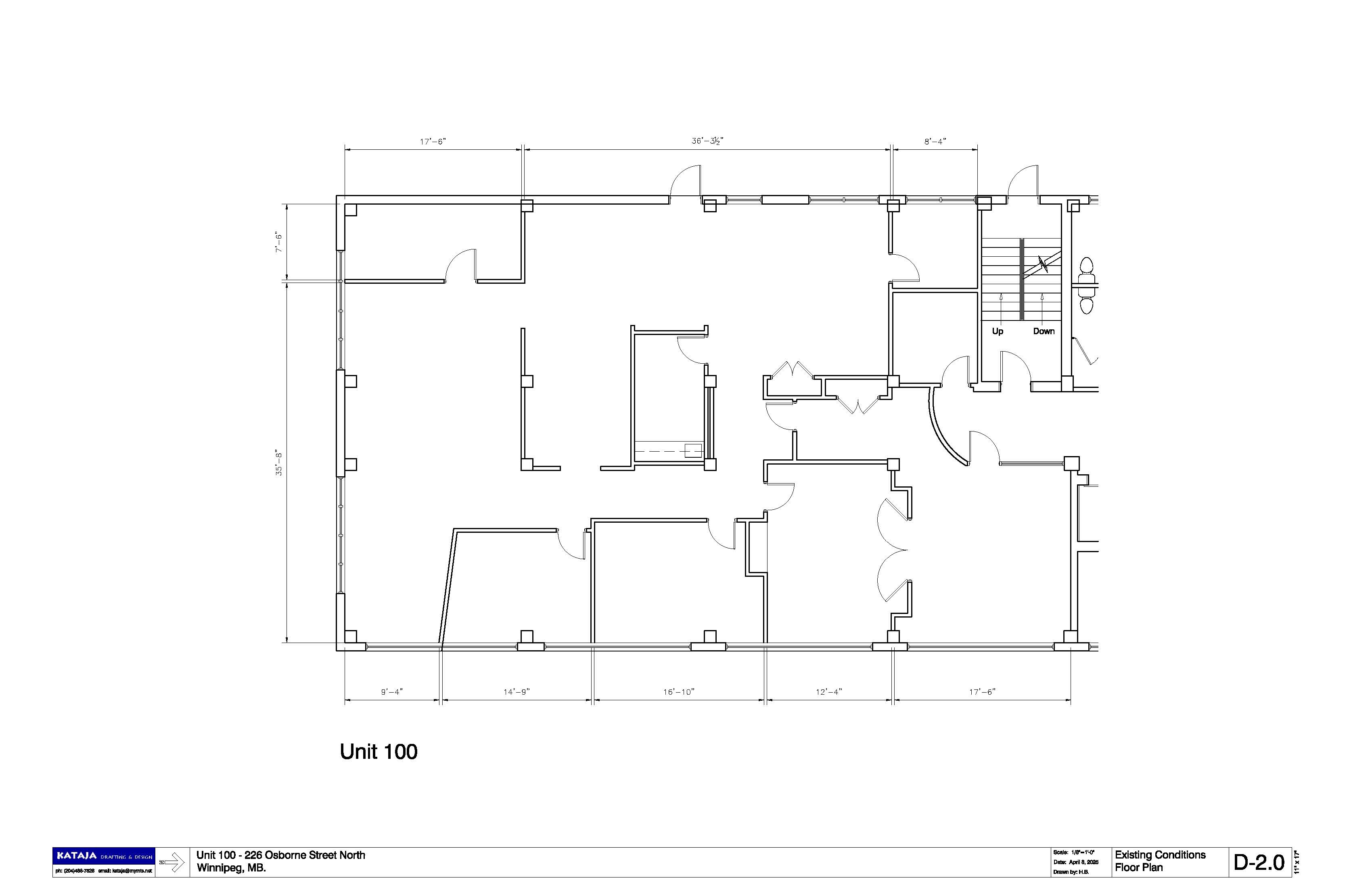
Unit 100 features a reception area, 2 private offices, open concept work space for cubicles, stationary area, kitchenette & boardroom.
Natural light floods the space with spectacular views of Memorial Park.
This two-storey office building on Osborne Street North, just north of Broadway, offers both finished and unfinished suites in a prime downtown location. Situated directly adjacent to Memorial Provincial Park, the Law Courts, and the Manitoba Legislative Building, it is an ideal space for law firms, government etc. Tenants have access to shared amenities, including a training room, boardroom, and kitchenette, at no additional cost. Common washrooms are available on each floor, and the building features secure card/mobile phone access, as well as elevator service. Onsite parking options include street parking in front, surface and garage parking at the rear, and additional surface parking on Good Street at market rates. Managed by Inlett Properties, the building is patrolled by security once every ni