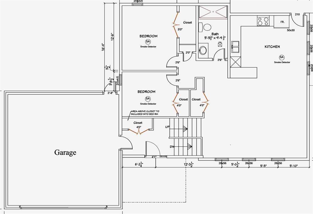
Awesome 1008 SqFt bilevel home situated on a massive reverse pie lot on Mill Creek Road in beautiful St Eustache! This home will be sure to impress! As you enter, you'll be greeted by a large drop foyer w/closet & access to the double attached garage! The main floor has a lovely open concept plan w/generous-sized living room, 9ft ceiling, loads of big beautiful windows, a large custom eat-in kitchen w/tons of counter space, peninsula (perfect for barstools), quartz countertops, custom cabinetry w/soft close hardware, & a garden door to the rear yard. Down the hall, you will find a full 4-pc bath & 2-large bedrooms w/ample closet space! The main floor will also boast LED pot lights & vinyl plank flooring! WOW! The basement will have large windows, roughed in plumbing for a future bath & laundry + mechanical area (ready for your future development) & will be constructed w/full height concrete foundation on piles, sump pump, 200amp service, central air, HRV & more! Call today for more information! Always happy to help!
- Bathrooms 1
- Bathrooms (Full) 1
- Bedrooms 2
- Building Type Bi-Level
- Built In 2026
- Exterior Other-Remarks, Stucco, Vinyl
- Floor Space 1008 sqft
- Neighbourhood R10
- Property Type Residential, Single Family Detached
- Rental Equipment None
- School Division Prairie Rose
- Tax Year 2025
- Features
- Air Conditioning-Central
- Central Exhaust
- Exterior walls, 2x6"
- Hood Fan
- Heat recovery ventilator
- Main floor full bathroom
- Smoke Detectors
- Sump Pump
- Parking Type
- Double Attached
- Garage door opener
- Site Influences
- No Back Lane
- No Through Road
Rooms
| Level | Type | Dimensions |
|---|---|---|
| Main | Eat-In Kitchen | 14 ft x 12 ft |
| Living Room | 13 ft x 17.5 ft | |
| Four Piece Bath | - | |
| Bedroom | 10.2 ft x 8.5 ft | |
| Primary Bedroom | 12 ft x 10.2 ft |