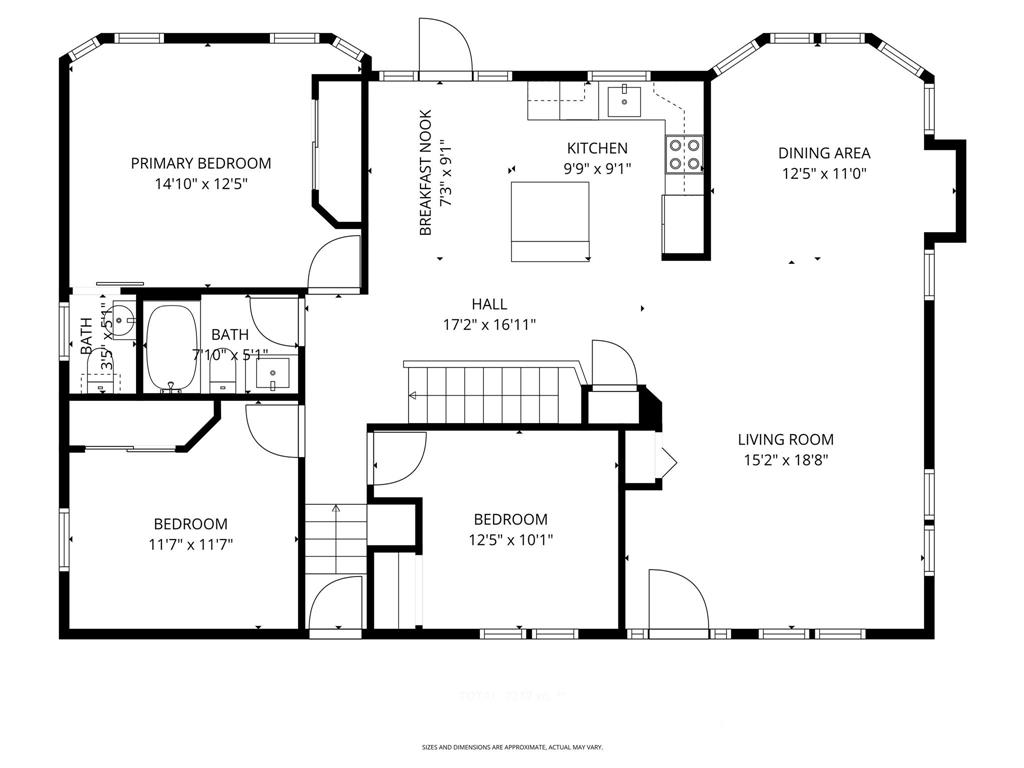
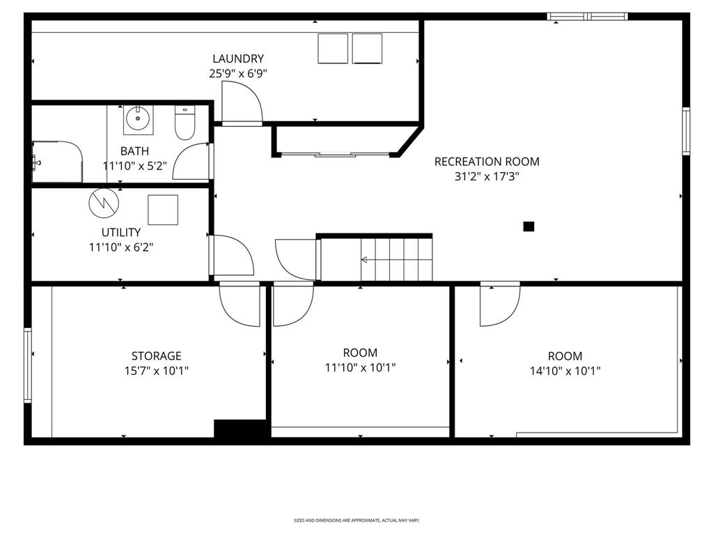
OTP Tues April 21st.One of a kind 6 bdrm 2.5 bthrm bungalow w/lake views from the front and back.Step inside to engineered hrdwd flooring seamlessly throughout the main living area w/12' vaulted ceilings & south facing picture window letting in an abundance of natural light. Remodelled eat in kitchen offers plenty of counter & cabinet space, bay window overlooking the lake, glass tile backsplash, dining area, garden door leading to your 20x12 deck and fenced backyard.Primary bdrm offers vaulted ceilings,2 pc remodelled ensuite & wall of closet space w/built ins. 2 more spacious main floor bdrms w/ample closet space, 4 pc main bthrm w/deep soaker tub, tile tub surround & quarts vanity.Access to your double att garage finishes this family friendly layout.Finished basement consists of huge rec room w/plush carpeting, drop ceiling & pot lighting. 3 more bdrms, 3 pc bthrm,l arge laundry room & plenty of storage.Additional features & upgrades:Hi eff furnace & AC('16), sump pump('16) HWT('25) architectural shingles, newer exterior paint & composite siding, aluminum soffit & fascia, walking distance to parks, splash pad, indoor & outdoor skating rinks and more. Must see to appreciate.
- Basement Development Fully Finished
- Bathrooms 3
- Bathrooms (Full) 2
- Bathrooms (Partial) 1
- Bedrooms 6
- Building Type Bungalow
- Built In 1991
- Depth 102.00 ft
- Exterior Composite, Stucco
- Floor Space 1357 sqft
- Frontage 55.00 ft
- Gross Taxes $5,316.12
- Neighbourhood Algonquin Estates
- Property Type Residential, Single Family Detached
- Remodelled Basement, Bathroom, Exterior, Flooring, Furnace, Kitchen, Roof Coverings, Windows
- Rental Equipment None
- School Division River East Transcona (WPG 72)
- Tax Year 25
- Total Parking Spaces 6
- Features
- Air Conditioning-Central
- Closet Organizers
- Deck
- Exterior walls, 2x6"
- Garburator
- Hood Fan
- High-Efficiency Furnace
- Microwave built in
- Smoke Detectors
- Sump Pump
- Goods Included
- Blinds
- Dryer
- Dishwasher
- Refrigerator
- Garage door opener
- Garage door opener remote(s)
- Microwave
- Stove
- TV Wall Mount
- Window Coverings
- Washer
- Parking Type
- Double Attached
- Front Drive Access
- Site Influences
- Fenced
- Golf Nearby
- Lake View
- Landscape
- Landscaped deck
- Playground Nearby
- Shopping Nearby
- Treed Lot
Rooms
| Level | Type | Dimensions |
|---|---|---|
| Main | Living Room | 18.8 ft x 12.7 ft |
| Dining Room | 10.7 ft x 11.9 ft | |
| Eat-In Kitchen | 14.5 ft x 15 ft | |
| Primary Bedroom | 12.4 ft x 13.6 ft | |
| Two Piece Ensuite Bath | 5.6 ft x 3.5 ft | |
| Bedroom | 11.4 ft x 12 ft | |
| Bedroom | 12 ft x 10.6 ft | |
| Four Piece Bath | 5 ft x 7.4 ft | |
| Basement | Recreation Room | 17.3 ft x 16.8 ft |
| Bedroom | 9.9 ft x 15.3 ft | |
| Bedroom | 10 ft x 15.1 ft | |
| Bedroom | 9.9 ft x 12 ft | |
| Three Piece Bath | 8.6 ft x 5.5 ft | |
| Laundry Room | 7.3 ft x 24.6 ft |