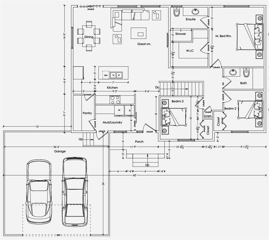
Welcome to Bouchard Drive, Elie MB's most desirable new development! MASSIVE 153' x 414' serviced lot!! This 1407 SqFt Bungalow w/a craftsman-style elevation & front porch will be sure to impress! As you enter this home, you'll be greeted by a large front foyer with access to the mudroom/main floor laundry room, double-attached garage & access to the walk-through butlers pantry...great for bringing groceries in from the garage! The main floor boasts a gorgeous open-concept plan incl the custom kitchen w/large island, quartz countertops, 9ft ceiling, LED potlights, luxury vinyl plank flooring, large dining area & stunning great room w/large windows! Down the hall, you will find the full 4-pc bath, & 3 bedrooms incl the large primary bedroom w/walk-in closet + gorgeous ensuite bath w/acrylic shower! WOW! This home is built-to-last w/full-height concrete foundation on piles, 2x6 exterior walls, PVC windows, central a/c, sump-pump & MORE! Call for more info & set up a time to talk about building! At this stage, you can fully customize this floor plan & select your materials to make it what you want. Always happy to help!
- Bathrooms 2
- Bathrooms (Full) 2
- Bedrooms 3
- Building Type Bungalow
- Built In 2026
- Depth 414.00 ft
- Exterior Stone, Stucco, Vinyl
- Floor Space 1407 sqft
- Frontage 153.00 ft
- Neighbourhood RM of Cartier
- Property Type Residential, Single Family Detached
- Rental Equipment None
- School Division Prairie Rose
- Tax Year 2025
- Features
- Air Conditioning-Central
- Central Exhaust
- Exterior walls, 2x6"
- Hood Fan
- Hot Tub
- Heat recovery ventilator
- Laundry - Main Floor
- Main floor full bathroom
- Smoke Detectors
- Sump Pump
- Parking Type
- Double Attached
- Garage door opener
- Site Influences
- Other/remarks
Rooms
| Level | Type | Dimensions |
|---|---|---|
| Main | Four Piece Bath | - |
| Three Piece Ensuite Bath | - | |
| Bedroom | 10 ft x 10 ft | |
| Bedroom | 9.5 ft x 9.5 ft | |
| Primary Bedroom | 14 ft x 13 ft | |
| Laundry Room | - | |
| Mudroom | - | |
| Living Room | 14 ft x 13 ft | |
| Dining Room | 14 ft x 9 ft | |
| Kitchen | 14.6 ft x 8.6 ft |