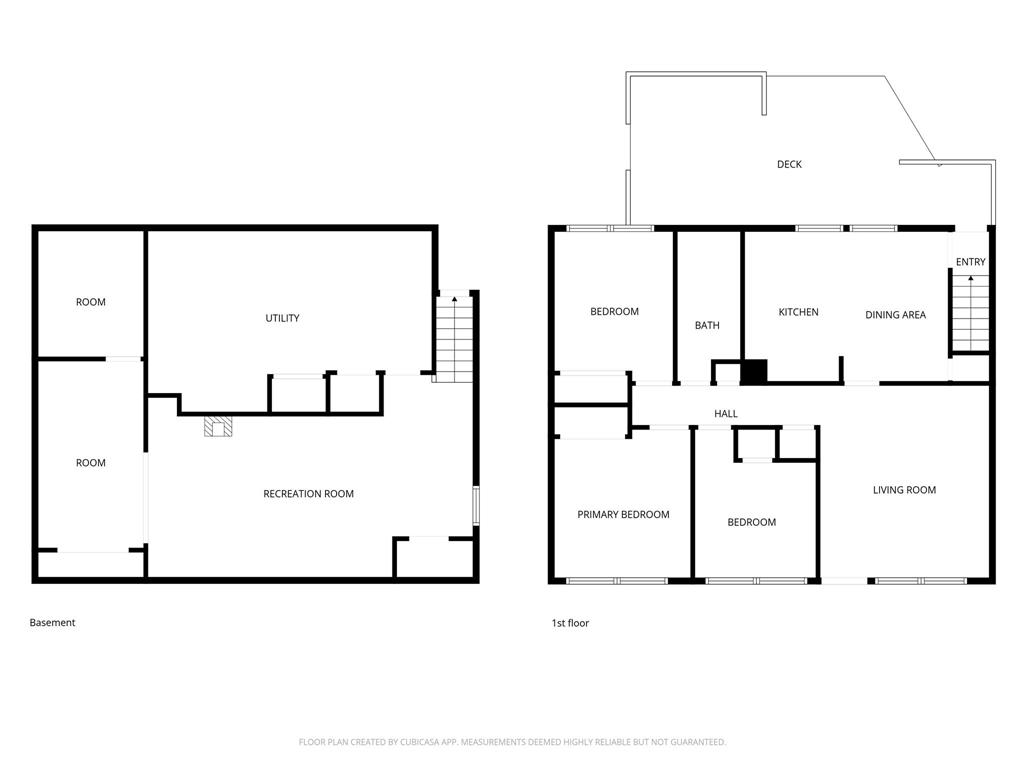
Offers 2PM March 31st | OH Sat & Sun 2:30 - 4:30pm | Some pics are virtually staged. | Charming and well cared for, this 3 bed bungalow offers a fantastic opportunity in a quiet East Transcona location. Lovingly maintained for over 50 years, this home features a bright and spacious living room with a large picture window and hardwood floors throughout the main level. The functional layout includes three comfortable bedrooms, each with closet space, along with a spacious 4 piece bathroom. The eat-in kitchen provides plenty of room for everyday dining and offers ample cabinet space with a window overlooking the backyard. Downstairs, you’ll find a generous recreation room complete with a cozy free-standing gas fireplace, along with two additional den spaces ideal for a home office, playroom, or hobby area. The utility and laundry room offers excellent storage and functionality. Outside, enjoy a great backyard with patio space, composite deck, and two sheds, plus an oversized single detached garage. Move-in ready with updated shingles (2018) and hot water tank (2021), all just steps away from Murdoch MacKay Collegiate, Collège Pierre-Elliott-Trudeau and Victoria Jason Park, making this a perfect location!
- Basement Development Fully Finished
- Bathrooms 1
- Bathrooms (Full) 1
- Bedrooms 3
- Building Type Bungalow
- Built In 1963
- Depth 100.00 ft
- Exterior Brick, Composite, Stucco
- Fireplace Free-standing, Glass Door
- Fireplace Fuel Gas
- Floor Space 980 sqft
- Frontage 50.00 ft
- Gross Taxes $3,945.12
- Neighbourhood East Transcona
- Property Type Residential, Single Family Detached
- Remodelled Roof Coverings
- Rental Equipment None
- School Division River East Transcona (WPG 72)
- Tax Year 25
- Total Parking Spaces 4
- Features
- Air Conditioning-Central
- Deck
- Main floor full bathroom
- Patio
- Sump Pump
- Goods Included
- Dryer
- Dishwasher
- Refrigerator
- Garage door opener
- Storage Shed
- Stove
- Window Coverings
- Washer
- Parking Type
- Single Detached
- Front Drive Access
- Garage door opener
- Paved Driveway
- Site Influences
- Fenced
- Landscaped deck
- Landscaped patio
- Paved Street
- Playground Nearby
Rooms
| Level | Type | Dimensions |
|---|---|---|
| Main | Living Room | 15 ft x 13.75 ft |
| Eat-In Kitchen | 15.75 ft x 12 ft | |
| Primary Bedroom | 12 ft x 10.75 ft | |
| Bedroom | 9.5 ft x 9.5 ft | |
| Bedroom | 10.25 ft x 9 ft | |
| Four Piece Bath | - | |
| Basement | Recreation Room | 25.25 ft x 12.5 ft |
| Utility Room | 21.25 ft x 10 ft | |
| Den | 14.5 ft x 7.75 ft | |
| Den | 9 ft x 7.75 ft |