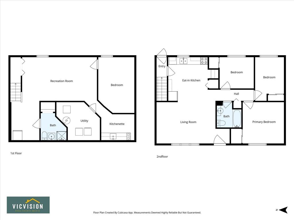
Offers as received. OH Sat & Sun 2-4pm. Measurements +/- jogs. Welcome to 19 Gainsborough Cove, a charming 845 sq. ft. bungalow built in 1972, located in the highly desirable neighbourhood of Tyndall Park. The bright & spacious main floor features a huge living room filled with natural light, an updated kitchen with ample cabinetry, a large primary bedroom, two additional well-sized bedrooms, and a full bathroom. The fully finished basement with a separate entrance offers excellent additional living space, including a massive rec room, an extra bedroom, and a second full bathroom—ideal for extended family, guests, or potential in-law suite setup. Step outside to a beautiful, fully fenced backyard featuring a lovely garden—perfect for relaxing, entertaining, or enjoying time with family. The property also offers a detached double garage with convenient access from the back lane off a different street, providing added privacy and ease of entry. Conveniently located close to schools, parks, public transportation, and all amenities. Upgrades include: Paint (2025), Garage shingles (2025), Doors (2024), Fridge (2025), A/C (2025), Furnace (2025), Stove (2022). A fantastic opportunity in a great location!
- Basement Development Fully Finished
- Bathrooms 2
- Bathrooms (Full) 2
- Bedrooms 4
- Building Type Bungalow
- Built In 1972
- Exterior Stucco, Vinyl
- Floor Space 845 sqft
- Gross Taxes $2,829.54
- Neighbourhood Tyndall Park
- Property Type Residential, Single Family Detached
- Rental Equipment None
- Tax Year 2025
- Features
- Air Conditioning-Central
- Hood Fan
- High-Efficiency Furnace
- No Pet Home
- No Smoking Home
- Parking Type
- Double Detached
- Site Influences
- Back Lane
- Landscape
Rooms
| Level | Type | Dimensions |
|---|---|---|
| Main | Living Room | 16 ft x 11.25 ft |
| Kitchen | 11.83 ft x 10.83 ft | |
| Four Piece Bath | - | |
| Primary Bedroom | 11.25 ft x 11.17 ft | |
| Bedroom | 8.5 ft x 9.5 ft | |
| Bedroom | 7.75 ft x 9.83 ft | |
| Basement | Recreation Room | 26.58 ft x 11.33 ft |
| Three Piece Bath | - | |
| Bedroom | 9.9 ft x 15 ft |