Custom built two-story in the heart of River Heights offers over 2,800 sq ft of architecturally designed living space. A spacious foyer welcomes you into the stunning living room where floor to ceiling windows fill the space with natural light and a striking double sided gas fireplace finished in Tyndall stone creates a warm atmosphere. Custom millwork & built-in cabinetry throughout provide both elegance and exceptional storage, complemented by LVP flooring. The dining area flows seamlessly into stunning kitchen featuring a large peninsula island, built-in appliances, and a gas range, every cook’s dream! A spacious mudroom & laundry area with built-in cabinetry, laundry sink, and direct backyard and garage access completes the main floor. Upstairs offers 4 spacious bedrooms, a full bath, & a private primary retreat with walk-in closet and spa like ensuite featuring a steam shower, deep soaker tub, and built-in surround sound. The finished lower level adds a large rec room, 2 more bedrooms, den, & a 3 pc bath. Complete with a double attached garage, this exceptional River Heights home offers refined living in a premier location.
- Basement Development Fully Finished, Insulated
- Bathrooms 4
- Bathrooms (Full) 3
- Bathrooms (Partial) 1
- Bedrooms 6
- Building Type Two Storey
- Built In 2018
- Depth 108.00 ft
- Exterior Aluminum Siding, Stone, Stucco
- Fireplace Double-sided, Glass Door, Stone
- Fireplace Fuel Gas
- Floor Space 2856 sqft
- Frontage 41.00 ft
- Gross Taxes $16,525.68
- Neighbourhood River Heights North
- Property Type Residential, Single Family Detached
- Rental Equipment None
- School Division Winnipeg (WPG 1)
- Tax Year 25
- Total Parking Spaces 2
- Features
- Air Conditioning-Central
- Closet Organizers
- Hood Fan
- High-Efficiency Furnace
- Heat recovery ventilator
- Laundry - Main Floor
- Microwave built in
- Oven built in
- Patio
- Sump Pump
- Goods Included
- Alarm system
- Blinds
- Dryer
- Dishwasher
- Refrigerator
- Garage door opener
- Garage door opener remote(s)
- Microwave
- Stove
- Washer
- Parking Type
- Double Attached
- Insulated garage door
- Insulated
- Rear Drive Access
- Site Influences
- Fenced
- Back Lane
- Paved Lane
- Landscaped patio
- Playground Nearby
- Shopping Nearby
- Public Transportation
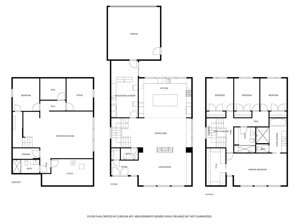
Rooms
| Level | Type | Dimensions |
|---|---|---|
| Main | Living Room | 20.75 ft x 15 ft |
| Kitchen | 20.75 ft x 15.25 ft | |
| Dining Room | 27.25 ft x 11.75 ft | |
| Mudroom | 22.25 ft x 10.5 ft | |
| Two Piece Bath | - | |
| Upper | Bedroom | 12.75 ft x 10.25 ft |
| Bedroom | 12.75 ft x 10.25 ft | |
| Bedroom | 12.75 ft x 10.25 ft | |
| Three Piece Bath | - | |
| Primary Bedroom | 23.75 ft x 12.75 ft | |
| Five Piece Ensuite Bath | 13.5 ft x 12 ft | |
| Basement | Recreation Room | 31.5 ft x 18.75 ft |
| Bedroom | 12.75 ft x 10.5 ft | |
| Bedroom | 12.75 ft x 10.25 ft | |
| Den | 10 ft x 8.5 ft | |
| Three Piece Bath | - | |
| Utility Room | 20 ft x 10.25 ft | |
| Storage Room | 10.5 ft x 4.25 ft |