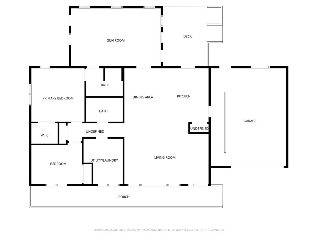
Looking for a home suited to downsizing? Tired of stairs and ready to get rid of your basement but still want lots of space? Look no further...you have found it. This 1440 sf bungalow was built in 2010 and functions well for empty nesters, retirees or someone starting out. The layout is very inviting with open concept living/dining/kitchen area...and opens up to the large second living area at the back of the house. There are two bedrooms; the primary offers a walk-in closet and 3 pce ensuite bath. There is a 4 piece main bath and a spacious utility/laundry room...plenty of space to move around and access equipment. Hardwood floors run almost throughout...enhancing the flow. Heat pump is supplemented by forced air heat, and the attached garage has in-floor heat. There is also a water softener & HRV. Outside, the asphalt drive leads to the attached garage, as well as an inviting front verandah. A deck leads off the back/side of the house and offers access to the gazebo. It's a great spot looking west over the open field; watch the sunsets and the deer strolling by. An additional detached garage provides great storage/workshop/putter space. A great space to call home!
- Bathrooms 2
- Bathrooms (Full) 2
- Bedrooms 2
- Building Type Bungalow
- Built In 2010
- Depth 150.00 ft
- Exterior Other-Remarks, Stone
- Floor Space 1440 sqft
- Frontage 75.00 ft
- Gross Taxes $3,813.96
- Neighbourhood Gimli
- Property Type Residential, Single Family Detached
- Rental Equipment None
- School Division Evergreen
- Tax Year 2025
- Features
- Air Conditioning-Central
- Deck
- Exterior walls, 2x6"
- Ceiling Fan
- Heat pump heating
- Heat recovery ventilator
- Jetted Tub
- Main floor full bathroom
- Microwave built in
- Goods Included
- Blinds
- Dryer
- Dishwasher
- Refrigerator
- Garage door opener
- Garage door opener remote(s)
- Microwave
- Stove
- Washer
- Water Softener
- Parking Type
- Single Attached
- Single Detached
- Garage door opener
- Heated
- Insulated
- Site Influences
- Flat Site
- Golf Nearby
- Landscaped deck
- No Back Lane
- No Through Road
- View
Rooms
| Level | Type | Dimensions |
|---|---|---|
| Main | Great Room | 26.92 ft x 19.42 ft |
| Primary Bedroom | 12.42 ft x 12.17 ft | |
| Three Piece Ensuite Bath | 8.42 ft x 6.42 ft | |
| Walk-in Closet | 6 ft x 4.75 ft | |
| Bedroom | 11.58 ft x 8.92 ft | |
| Four Piece Bath | 8 ft x 5.5 ft | |
| Sunroom | 20.92 ft x 13.42 ft | |
| Laundry Room | 10.42 ft x 9.08 ft |