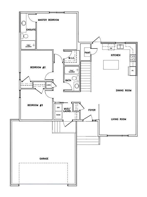
Come visit our showhome located at 383 Grande Pointe Meadows Blvd every Mon-Thurs 4-8PM & Sat/Sun 12-5PM! Built by Connection Homes in Ile Des Chenes, This BRAND NEW 3 bedroom home is perfect for the growing family & is loaded w/features! As you enter the home, you'll be greeted by a large front foyer w/coat closet, a fabulous open concept floor plan incl: durable laminate flooring, 9ft main floor ceiling, pot lights, & loads of windows that let in a ton of natural light. The main floor also boasts a large dining area, modern & functional kitchen w/island, food storage pantry, soft close drawers, quartz countertops & tons of counter space! The living room is the perfect size for entertaining. Down the hall you'll find a mud room off of the double attached garage w/main floor laundry, 4-pc bath, & 3 large beds incl the master bedroom w/walk-in closet & full ensuite bath! Full height concrete foundation on piles, concrete driveway, central a/c, & more! Call today for more info & to set up an apt to discuss everything in more detail! Always happy to help!
- Bathrooms 2
- Bathrooms (Full) 2
- Bedrooms 3
- Building Type Bungalow
- Built In 2026
- Depth 130.00 ft
- Exterior Other-Remarks
- Floor Space 1281 sqft
- Frontage 50.00 ft
- Neighbourhood R05
- Property Type Residential, Single Family Detached
- Rental Equipment None
- School Division Seine River
- Tax Year 2025
- Features
- Air Conditioning-Central
- Central Exhaust
- Exterior walls, 2x6"
- Hood Fan
- High-Efficiency Furnace
- Heat recovery ventilator
- Laundry - Main Floor
- Main floor full bathroom
- Smoke Detectors
- Sump Pump
- Parking Type
- Double Attached
- Front Drive Access
- Paved Driveway
- Site Influences
- No Back Lane
- Paved Street
Rooms
| Level | Type | Dimensions |
|---|---|---|
| Main | Four Piece Bath | - |
| Three Piece Ensuite Bath | - | |
| Bedroom | 10.1 ft x 10.6 ft | |
| Bedroom | 10.1 ft x 10.25 ft | |
| Primary Bedroom | 13.35 ft x 11.11 ft | |
| Mudroom | - | |
| Laundry Room | - | |
| Kitchen | 14.9 ft x 10.7 ft | |
| Living Room | - |