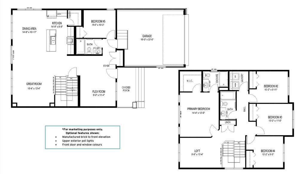
***First-time home buyers are entitled to a 5% GST rebate on the purchase price *** Build your Dream home with Ventura Custom homes. Welcome home to the Edgemont B. This modern, spacious home with an open concept layout, huge kitchen/dining area on the main floor with bedroom and full piece bath and 2nd floor featuring 4 good-sized bedrooms including a large master bedroom with a walk-in closet and ensuite, 2nd floor laundry room and a spacious loft. This home is perfect for any family!. The 2,174 sq ft Edgemont plan delivers tremendous living space and Lots of upgrade includes Pile foundation, Driveway, and sidewalk, stone, Delta Wrap, Painted White 3 1/2” baseboards and 2 1/2" casings, Smooth painted white ceilings, Insulated garage door with opener, oversized car garage 19' x 22', 9 ft main floor ceiling, 9 ft 2nd floor ceiling, LUXURY VINYL PLANK FLOORING & QUARTZ KITCHEN COUNTERTOPS. CALL FOR MORE INFO.
- Basement Development Insulated
- Bathrooms 3
- Bathrooms (Full) 3
- Bedrooms 5
- Building Type Two Storey
- Built In 2026
- Exterior Stone, Stucco
- Floor Space 2174 sqft
- Frontage 44.00 ft
- Neighbourhood West St Paul
- Property Type Residential, Single Family Detached
- Rental Equipment None
- School Division Seven Oaks (WPG 10)
- Tax Year 2025
- Total Parking Spaces 4
- Features
- Exterior walls, 2x6"
- High-Efficiency Furnace
- Heat recovery ventilator
- Smoke Detectors
- Sump Pump
- Parking Type
- Double Attached
- Front Drive Access
- Insulated garage door
- Oversized
- Site Influences
- Golf Nearby
- No Back Lane
- Not Landscaped
- Paved Street
- Shopping Nearby
Rooms
| Level | Type | Dimensions |
|---|---|---|
| Main | Family Room | 16.33 ft x 13.3 ft |
| Dining Room | 14.75 ft x 10.92 ft | |
| Kitchen | 14.67 ft x 8.75 ft | |
| Bedroom | 9 ft x 10.25 ft | |
| Four Piece Bath | - | |
| Upper | Primary Bedroom | 14.33 ft x 12.5 ft |
| Bedroom | 10.17 ft x 9.97 ft | |
| Bedroom | 10.17 ft x 11.42 ft | |
| Bedroom | 10.2 ft x 9.5 ft | |
| Laundry Room | - | |
| Four Piece Bath | - | |
| Four Piece Ensuite Bath | - |