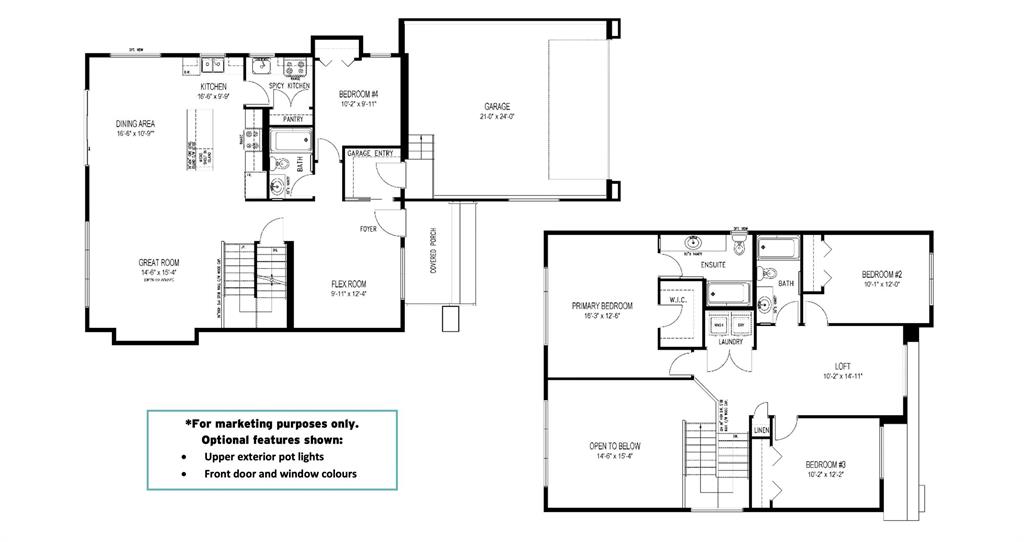
***First-time home buyers are entitled to a 5% GST rebate on the purchase price *** The Granville B-24! This 2,214 sqft modern prairie-style home features an ultra-modern, stylish exterior with amazing curb appeal. The interior features a very spacious, open-concept layout with 9' ceilings, versatile flex room, a private main floor bedroom & full bathroom for multigenerational families or as an office space for remote work, an oversized rear great room with 19' ceilings & huge upper & lower rear windows, a large rear dining area with 3-wide 8' tall patio doors, a huge island kitchen & a SPICY KITCHEN with sink, range & pantry located off the main kitchen. The 2nd floor features, 9ft ceiling, two large front bedrooms with a spacious loft, conveniently located 2nd-floor laundry, and a private primary bedroom with a large walk-in closet and huge private ensuite bathroom. This brand-new design has quickly become a best-seller due to its versatile layout, stunning exterior detailing, and unique features! The Granville is a one-of-a-kind home perfect for families of any size!
- Basement Development Insulated
- Bathrooms 3
- Bathrooms (Full) 3
- Bedrooms 4
- Building Type Two Storey
- Built In 2026
- Exterior Stucco, Wood Siding
- Floor Space 2214 sqft
- Frontage 44.00 ft
- Neighbourhood West St Paul
- Property Type Residential, Single Family Detached
- Rental Equipment None
- School Division Seven Oaks (WPG 10)
- Tax Year 2025
- Total Parking Spaces 4
- Features
- Exterior walls, 2x6"
- High-Efficiency Furnace
- Heat recovery ventilator
- Laundry - Second Floor
- Main floor full bathroom
- Smoke Detectors
- Sump Pump
- Parking Type
- Double Attached
- Front Drive Access
- Garage door opener
- Insulated garage door
- Paved Driveway
- Site Influences
- Paved Lane
- Not Fenced
- No Back Lane
- Paved Street
Rooms
| Level | Type | Dimensions |
|---|---|---|
| Main | Living Room | 9.92 ft x 12.33 ft |
| Great Room | 14.5 ft x 15.33 ft | |
| Kitchen | 16.5 ft x 9.75 ft | |
| Dining Room | 16.5 ft x 10.75 ft | |
| Second Kitchen | 7.67 ft x 5.67 ft | |
| Bedroom | 10.17 ft x 9.92 ft | |
| Four Piece Bath | - | |
| Upper | Primary Bedroom | 16.5 ft x 12.5 ft |
| Bedroom | 11.17 ft x 12.17 ft | |
| Bedroom | 10.17 ft x 12 ft | |
| Four Piece Ensuite Bath | - | |
| Four Piece Bath | - | |
| Laundry Room | - | |
| - |