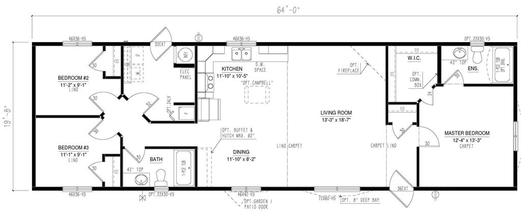
Welcome to "Prairie Oaks", an adult living community only mere minutes from Steinbach for your shopping or recreational amenities, or Winnipeg is 35mins away. This 3bdrm modular home features a neutral color tone throughout and offers you the canvas to decorate your home how you please. Your home already has stainless steel kitchen appliances in place, and a washer & dryer in your utility room (which also acts a second entrance into your home). Your primary bedroom not only has a Walk - In closet, but also a 4 pce ensuite as well. The layout of your home is convenient for you with your primary bedroom being constructed on one end, while your 2nd & 3rd bdrm are constructed on the opposite side close to the main 4pce bathroom. Your open concept main living area allows for a great flow for entertainment and conversing. The cute island is great for meal prepping, or a large charcutierre board placement. The patio doors off your dining room grant you access to your large deck!
- Bathrooms 2
- Bathrooms (Full) 2
- Bedrooms 3
- Building Type Bungalow
- Built In 2024
- Depth 131.00 ft
- Exterior Composite, Vinyl
- Floor Space 1280 sqft
- Frontage 74.00 ft
- Gross Taxes $1,690.11
- Neighbourhood R16
- Property Type Residential, Single Family Detached
- Rental Equipment None
- School Division Hanover
- Tax Year 2024
- Features
- Air Conditioning-Central
- Deck
- Laundry - Main Floor
- Main floor full bathroom
- Microwave built in
- Smoke Detectors
- Goods Included
- Dryer
- Dishwasher
- Refrigerator
- Microwave
- Stove
- Washer
- Parking Type
- Front Drive Access
- Site Influences
- Flat Site
- Golf Nearby
- Paved Street
- Shopping Nearby
Rooms
| Level | Type | Dimensions |
|---|---|---|
| Main | Kitchen | 11.83 ft x 10.42 ft |
| Dining Room | 11.83 ft x 8.17 ft | |
| Living Room | 18.58 ft x 13.25 ft | |
| Primary Bedroom | 13.25 ft x 12.33 ft | |
| Other | 7 ft x 3 ft | |
| Four Piece Ensuite Bath | - | |
| Bedroom | 11.17 ft x 9.08 ft | |
| Bedroom | 11.08 ft x 9.08 ft | |
| Four Piece Bath | - |