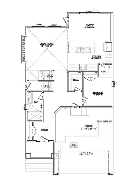
Wow! Come check out this gorgeous 2243 SF custom 2 storey by Foxridge Homes situated on a nice quiet street in beautiful Sage Creek. This beauty features 4 bedrooms and 3 full baths. There is a main floor bedroom and full bath on with a really nice walk-in shower. The great room is open to above/below and floods with tons of natural light. A very modern design with great flow from the huge walk-in mudroom closet to the stunning kitchen. The spacious kitchen has a massive island with quartz counter tops and tile backsplash. The primary bedroom has big walk-in closet and deluxe ensuite with dual vanity, stone counter and custom shower. This home also has side entry. Convenient second floor laundry room. Modern exterior finishes with 21.5' x 24' oversized attached garage. This home of course includes our Foxridge standards such as A/C, 2' x 6' construction, 200 amp panel, garage door openers with remote and keypad, backsplash, linear electric fireplace with remote, decora switches, lever handles, high efficiency furnace, 60 gallon hot water tank and 9' foundation basement walls to list just a few. This home is currently under construction with March possession available. A must see, call for more info!
- Basement Development Insulated
- Bathrooms 3
- Bathrooms (Full) 3
- Bedrooms 4
- Building Type Two Storey
- Built In 2026
- Depth 115.00 ft
- Exterior Metal, Stone, Stucco
- Fireplace Direct vent
- Fireplace Fuel Electric
- Floor Space 2243 sqft
- Frontage 42.00 ft
- Neighbourhood Sage Creek
- Property Type Residential, Single Family Detached
- Rental Equipment None
- School Division Louis Riel (WPG 51)
- Tax Year 2025
- Total Parking Spaces 4
- Features
- Air Conditioning-Central
- Closet Organizers
- Central Exhaust
- Engineered Floor Joist
- Exterior walls, 2x6"
- Hood Fan
- High-Efficiency Furnace
- Heat recovery ventilator
- Laundry - Second Floor
- Sump Pump
- Goods Included
- Alarm system
- Garage door opener
- Garage door opener remote(s)
- Parking Type
- Double Attached
- Garage door opener
- Insulated garage door
- Oversized
- Site Influences
- No Back Lane
- Paved Street
- Playground Nearby
- Shopping Nearby
- Public Transportation
Rooms
| Level | Type | Dimensions |
|---|---|---|
| Main | Kitchen | 16 ft x 10.17 ft |
| Dining Room | 15 ft x 10 ft | |
| Great Room | 15 ft x 15.17 ft | |
| Bedroom | 10.17 ft x 9.75 ft | |
| Three Piece Bath | - | |
| Mudroom | - | |
| Upper | Primary Bedroom | 15.5 ft x 13 ft |
| Bedroom | 11.5 ft x 10 ft | |
| Bedroom | 11 ft x 11 ft | |
| Laundry Room | - | |
| Four Piece Ensuite Bath | - | |
| Four Piece Bath | - |