Home is to be built. Offers as received.
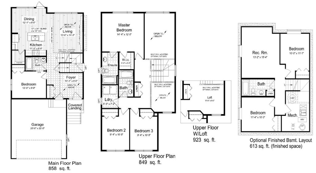
This brand new home to be built offers exceptional quality and modern design. With 1,781 square feet of thoughtfully planned living space, this four-bedroom, three-bathroom home provides comfort and functionality for growing families.

The main floor features luxury vinyl plank flooring and nine-foot ceilings creating an airy atmosphere. The kitchen showcases quartz countertops, perfect for meals and entertaining. A side entry adds practical appeal, while the main floor bedroom and full bathroom ensure accessibility.

Upstairs, discover three generously sized bedrooms, including a primary bedroom with ensuite bathroom. The second level features a loft space plus an open-to-below area enhancing the home's spacious feel.

The attached 20x22 garage provides storage and vehicle protection year-round. As the future homeowner, you'll select upgrades and colour schemes reflecting your personal style. There is currently a showhome with the same layout for viewing, though finishings may vary.

First time home buyer? You may qualify for the FTHB GST Rebate. Ask your Realtor!

  • Basement Development Insulated
  • Bathrooms 3
  • Bathrooms (Full) 3
  • Bedrooms 4
  • Building Type Two Storey
  • Built In 2027
  • Depth 118.00 ft
  • Exterior Stone, Stucco, Vinyl
  • Floor Space 1781 sqft
  • Frontage 34.00 ft
  • Neighbourhood Highland Pointe
  • Property Type Residential, Single Family Detached
  • Rental Equipment None
  • School Division Seven Oaks (WPG 10)
  • Tax Year 25
Features
Engineered Floor Joist
Exterior walls, 2x6"
High-Efficiency Furnace
Heat recovery ventilator
Laundry - Second Floor
Main floor full bathroom
Smoke Detectors
Sump Pump
Goods Included
Dishwasher
Microwave
Parking Type
Double Attached
Site Influences
Paved Street
Playground Nearby

Rooms

Level Type Dimensions
Main Dining Room 12.1 ft x 9 ft
Kitchen 11.5 ft x 8.6 ft
Living Room 13 ft x 14.3 ft
Four Piece Bath -
Bedroom 12 ft x 9.9 ft
Foyer 10.3 ft x 9 ft
Upper Primary Bedroom 14.4 ft x 12 ft
Four Piece Ensuite Bath -
Walk-in Closet 5 ft x 5.3 ft
Bedroom 9.4 ft x 10.5 ft
Bedroom 9.4 ft x 10.5 ft
Four Piece Bath -
Loft 11.8 ft x 9.2 ft
Laundry Room 5.5 ft x 7.2 ft