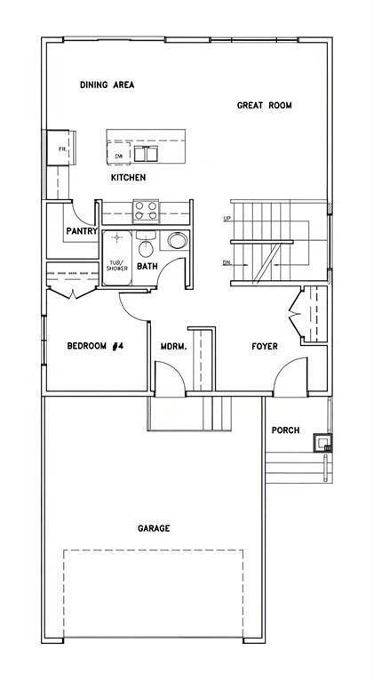
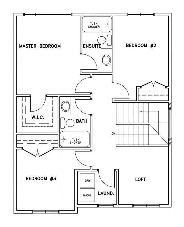
Call to set up an appointment at our showhome at 13 Woodland Way in Parkview Pointe! Welcome to 154 Ramona Gallos in Templeton Gates! This stunning 2-storey home custom-built by Connection Homes will be sure to impress! The main floor boasts a large front foyer w/coat closet, mudroom with access to the double attached garage, a full 4pc bathroom & a 4th bedroom on the main floor! Separate/side entrance included! The kitchen will feature soft close hardware, quartz countertops, high quality custom cabinetry, island & food storage pantry! The dining room and great room are very spacious, perfect for the growing family! Upstairs you’ll find the 2nd floor laundry room, a large loft, full 4pc bath & 3 large bedrooms including the generously-sized master bedroom with walk-in closet & 3pc ensuite bath w/standing shower! This home will be situated on a large 170 ft Deep, South-facing backyard lot on the pond! Call today to book your appointment to discuss building with Connection Homes! Always happy to help!
- Bathrooms 3
- Bathrooms (Full) 3
- Bedrooms 4
- Building Type Two Storey
- Built In 2026
- Depth 170.00 ft
- Exterior Other-Remarks
- Floor Space 1675 sqft
- Frontage 34.00 ft
- Neighbourhood Amber Gates
- Property Type Residential, Single Family Detached
- Rental Equipment None
- School Division Seven Oaks (WPG 10)
- Tax Year 2025
- Features
- Air Conditioning-Central
- Central Exhaust
- Exterior walls, 2x6"
- Hood Fan
- High-Efficiency Furnace
- Heat recovery ventilator
- Laundry - Second Floor
- Main floor full bathroom
- Smoke Detectors
- Sump Pump
- Parking Type
- Double Attached
- Front Drive Access
- Garage door opener
- Paved Driveway
- Site Influences
- No Back Lane
- Paved Street
Rooms
| Level | Type | Dimensions |
|---|---|---|
| Upper | Primary Bedroom | 13 ft x 10.5 ft |
| Bedroom | 10.1 ft x 9.6 ft | |
| Bedroom | 9 ft x 11.6 ft | |
| Three Piece Ensuite Bath | - | |
| Four Piece Bath | - | |
| Laundry Room | - | |
| Loft | - | |
| Main | Kitchen | 12.45 ft x 8.5 ft |
| Dining Room | 12.45 ft x 7.65 ft | |
| Bedroom | 9 ft x 9 ft | |
| Great Room | 14 ft x 9.4 ft | |
| Four Piece Bath | - |