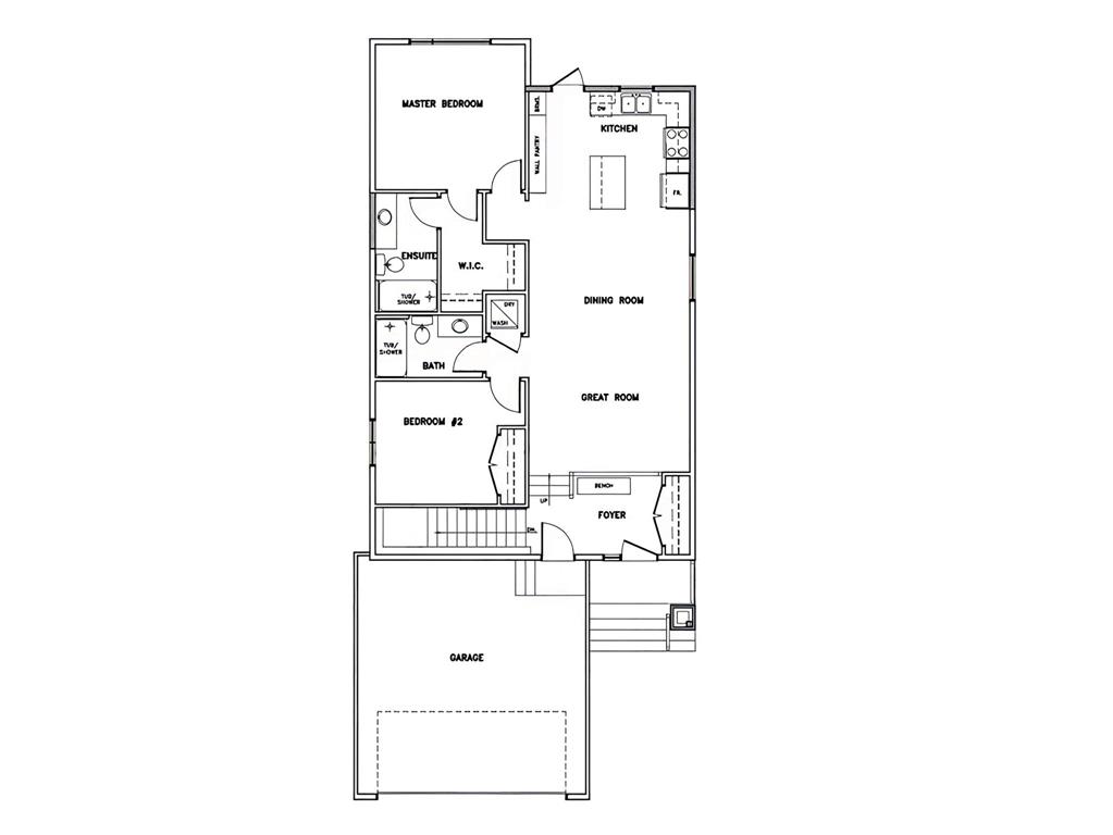
Visit our showhome at 383 Grande Pointe Meadows Blvd every Wed from 5-8pm & every Sat & Sun from 1-4PM! Welcome to the Villas at Grande Pointe Meadows! To be built by Connection Homes, this 1168SF 2 Bed/2 Bath Bungalow Home is sure to impress: Double-attached garage w/concrete driveway, 9ft main floor ceiling, main floor laundry & an open concept main floor plan incl the large kitchen w/island & wall pantry, dining room & spacious living room (great floor plan for entertaining)! The main floor also boasts a large dropped front foyer, w/lots of room for a future bench and access to the double-garage! The spacious primary bedroom features a large window overlooking the back yard! The home is built w/a full-height concrete foundation on piles, high-efficiency gas furnace + central air conditioning, HRV, 5-year new home warranty, concrete driveway & more! At this stage you can choose all of your colours, materials & finishes! Call today for more info! Always happy to help!
- Basement Development Insulated
- Bathrooms 2
- Bathrooms (Full) 2
- Bedrooms 2
- Building Type Bungalow
- Built In 2026
- Condo Fee $120.15 Monthly
- Depth 108.00 ft
- Exterior Composite, Stone, Stucco
- Floor Space 1168 sqft
- Frontage 40.00 ft
- Neighbourhood Grande Pointe
- Property Type Condominium, Single Family Detached
- Rental Equipment None
- School Division Seine River
- Tax Year 2025
- Amenities
- Garage Door Opener
- In-Suite Laundry
- Visitor Parking
- Professional Management
- Condo Fee Includes
- Contribution to Reserve Fund
- Insurance-Common Area
- Features
- Air Conditioning-Central
- Exterior walls, 2x6"
- High-Efficiency Furnace
- Heat recovery ventilator
- Main floor full bathroom
- No Smoking Home
- Sump Pump
- Pet Friendly
- Goods Included
- Garage door opener
- Garage door opener remote(s)
- Parking Type
- Double Attached
- Garage door opener
- Paved Driveway
- Site Influences
- No Back Lane
- Paved Street
Rooms
| Level | Type | Dimensions |
|---|---|---|
| Main | Great Room | 14 ft x 12 ft |
| Dining Room | 14 ft x 11 ft | |
| Kitchen | 14 ft x 10 ft | |
| Primary Bedroom | 12 ft x 12.5 ft | |
| Bedroom | 10.5 ft x 10.5 ft | |
| Four Piece Bath | - | |
| Three Piece Ensuite Bath | - |