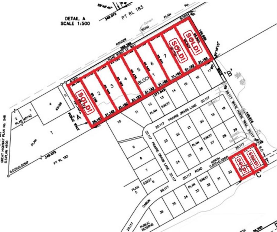
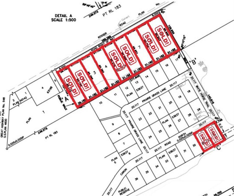
Welcome to White Horse Estates, an exciting new development in scenic St. François-Xavier. Several spacious lots are now available on a fully paved road, offering the perfect opportunity to build your dream home in a peaceful country setting. Driveway approach and services at Rosser Road. Enjoy the best of both worlds — beautiful rural views paired with nearby amenities like a school, daycare, and recreation centre, all within walking distance. Located just 15 minutes from the west perimeter, you’ll have quick access to city life while coming home to quiet, country charm. Start building your dream today!
- Depth 313.00 ft
- Frontage 102.00 ft
- Neighbourhood St Francois Xavier
- Property Type Residential, Vacant Land
- School Division Prairie Rose
- Site Influences
- Country Residence
- Paved Street
- Playground Nearby
- Shopping Nearby