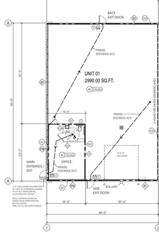
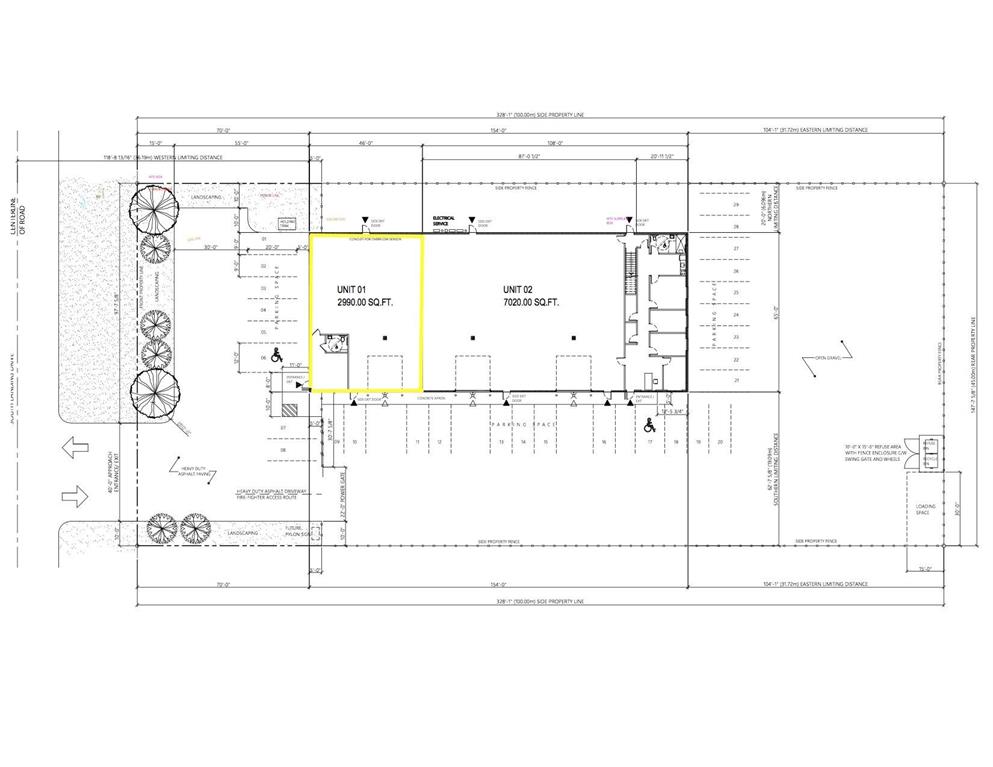
Welcome to 38 South Landing Drive Business Park, Located within the RM of MacDonald. The area benefits from low property taxes and no business tax. The building will feature a 2,990 SF unit with 20’ clear ceiling heights, equipped with one 14X14 grade-level overhead door, Electrical power to the unit has two panels, one rated at 100A 347/600V and another rated at 200A 120/208V; both 3-phase, a washroom, and office space, Floor drains in the warehouse, Security cameras on the exterior of the building, and Fenced compound space also available. This unit is clean, functional, and move-in ready—perfect for light industrial, manufacturing, or warehousing operations at a strategic and prime location and excellent access to major transportation routes. Pylon signage & ample parking are available. Net Rent $17.00+Additional Rent*(est) $7.50
- Built In 2025
- Neighbourhood RM of MacDonald
- Property Type Commercial, Industrial Space for Lease
- Units 2
- Amenities
- 1 or More Washrooms
- Parking Type
- Surface
- Site Influences
- Fenced
- Highway Access
- Industrial Park
- Landscape