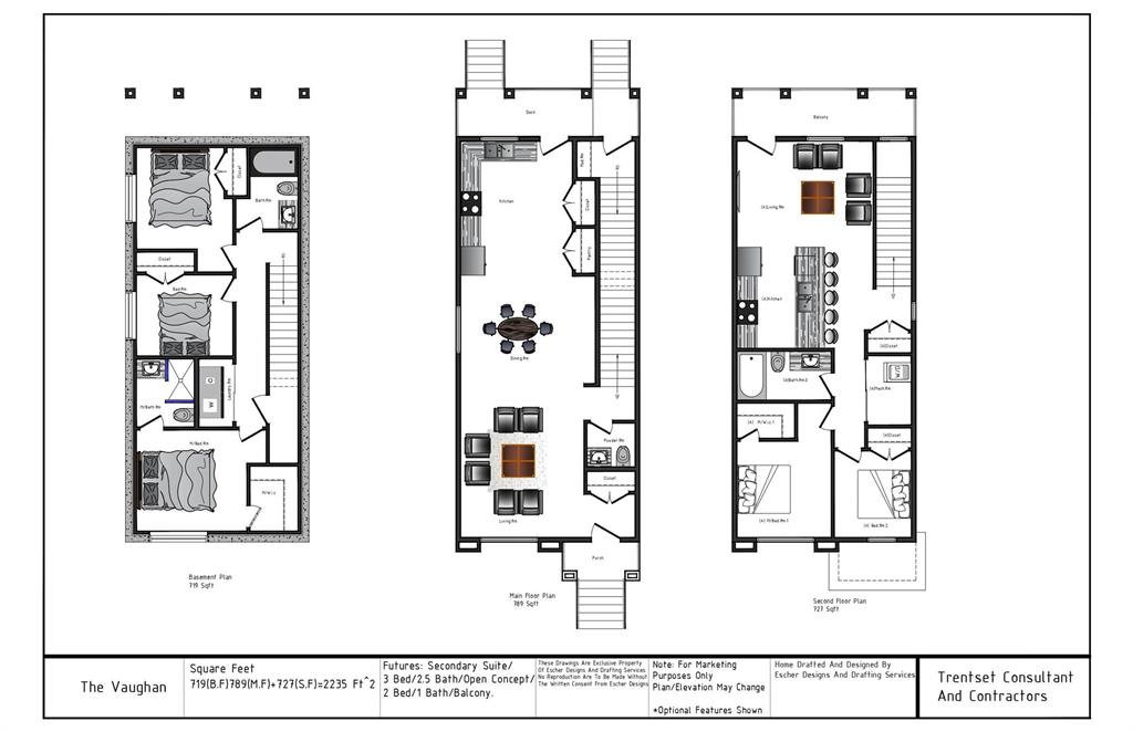
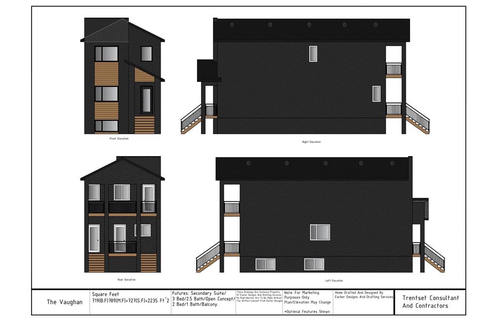
To Be Build - Introducing two story house with approximately 2235 SF include fully finished basement. This investment property will build two suits with two separate entrance as shown in plan. This house will be build with 5 bedrooms, 3.5 washrooms , 2 kitchens, laundries and more. Any questions please feel free to contact LA.

  • Building Type Two Storey
  • Built In 2026
  • Neighbourhood R14
  • Property Type Residential, Vacant Land
  • Tax Year 2025
Site Influences
Back Lane