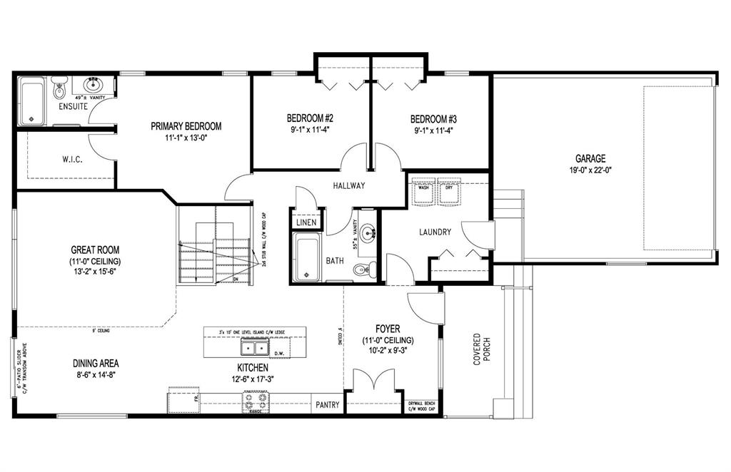
Triple car garage. Best kept secret. City services. A stones throw from the city brings you to the peace and tranquility of beautiful, quiet River Springs Grove. Welcome home. Featuring a multi acre park along the river boasting a soccer field, baseball diamond, park benches and a park shelter for family gatherings, including a large play ground for kids only walking distance from your front door. Brand new 1555 sqft bungalow with triple car garage on spacious 58' x144' lot. This 3 bedroom home features an open concept layout, large island kitchen with quartz countertops. L-shaped kitchen, dining room and great room. 9' high ceilings on the main floor, Main floor laundry, piled foundation, concrete driveway. Prime location just steps away from the beautiful multi-acre park. A perfect blend of style and function

  • Basement Development Insulated
  • Bathrooms 2
  • Bathrooms (Full) 2
  • Bedrooms 3
  • Building Type Bungalow
  • Built In 2025
  • Depth 144.00 ft
  • Exterior Stone, Stucco
  • Floor Space 1555 sqft
  • Frontage 58.00 ft
  • Neighbourhood West St Paul
  • Property Type Residential, Single Family Detached
  • Rental Equipment None
  • School Division Seven Oaks (WPG 10)
  • Tax Year 2025
Parking Type
Triple Attached
Site Influences
Park/reserve
Playground Nearby

Rooms

Level Type Dimensions
Main Primary Bedroom 13 ft x 11 ft
Bedroom 9.1 ft x 11 ft
Bedroom 9.1 ft x 11 ft
Four Piece Bath -
Three Piece Ensuite Bath -
Great Room 14 ft x 13 ft
Kitchen 17 ft x 10.6 ft
Dining Room 8.6 ft x 14.8 ft