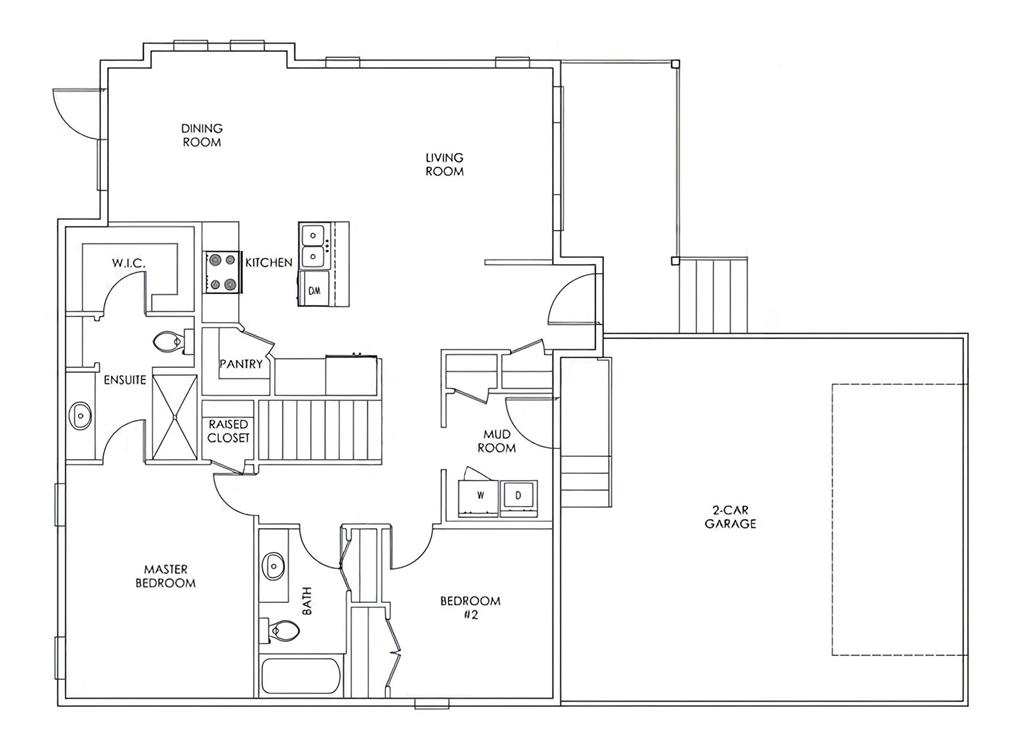
Amazing bungalow to-be-built in the new "Oak Terrace" development in Lorette MB! This 1130 SqFt bungalow offers a functional open-concept floor plan with a large living room, dining room (garden door to the backyard), and a custom kitchen featuring an island, corner pantry, soft-close cabinets, and quartz countertops! Enjoy the spacious covered front porch, perfect for your morning coffee or evening glass of wine! The main floor includes durable vinyl plank flooring, 9ft ceilings, LED potlights, and loads of windows for natural light. You’ll find the main floor laundry/mudroom leading to a 22x22 double garage, a spacious 2nd bedroom with large closet, a 4-pc bath, and a spacious master bedroom with large walk-in closet + additional storage/linen closet, & 3pc ensuite bath w/standing shower! Built to last with a full-height concrete foundation on piles, concrete driveway, central air conditioning, 10 year new home warranty & more. Call today, Always happy to help!
- Bathrooms 2
- Bathrooms (Full) 2
- Bedrooms 2
- Building Type Bungalow
- Built In 2026
- Depth 100.00 ft
- Exterior Stone, Stucco, Vinyl
- Floor Space 1130 sqft
- Frontage 55.00 ft
- Neighbourhood R05
- Property Type Residential, Single Family Detached
- Rental Equipment None
- School Division Seine River
- Tax Year 2025
- Features
- Air Conditioning-Central
- Central Exhaust
- Exterior walls, 2x6"
- Hood Fan
- High-Efficiency Furnace
- Heat recovery ventilator
- Laundry - Main Floor
- Main floor full bathroom
- Smoke Detectors
- Sump Pump
- Parking Type
- Double Attached
- Front Drive Access
- Garage door opener
- Paved Driveway
- Site Influences
- No Back Lane
- Paved Street
Rooms
Level | Type | Dimensions |
---|---|---|
Main | Four Piece Bath | - |
Three Piece Ensuite Bath | - | |
Laundry Room | - | |
Living Room | 12.6 ft x 11.5 ft | |
Dining Room | 12 ft x 9 ft | |
Kitchen | 10 ft x 9 ft | |
Primary Bedroom | 13.9 ft x 11.5 ft | |
Bedroom | 10 ft x 9 ft |