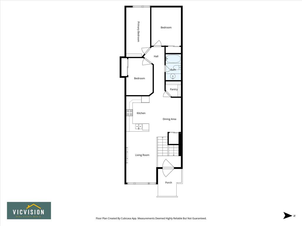
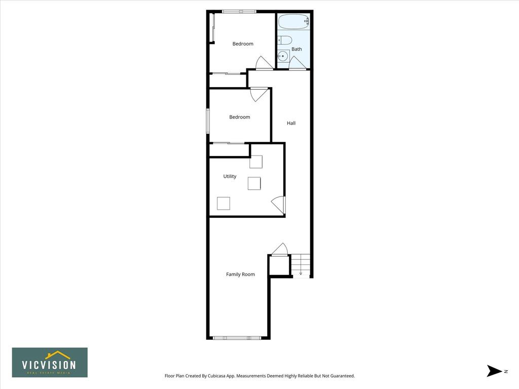
*Offers reviewed as received*. Beautifully located, lots of bedrooms, finished basement, fenced yard and enclosed parking. This bi-level family home has it all! Let's start with LOCATION. It has the St. James Rods football club right behind it. So you can enjoy the field, walking and bike paths to your heart's content. It is also conveniently located on a bus route and is less than five minutes away from Polo Park Shopping Centre, Restaurants and most other conveniences. The main floor includes an open floor plan Kitchen, Dining and Living Room with electric fire place. You also have a four piece bath with lots of storage and three roomy bedrooms with bright windows. The basement is fully finished. If offers two additional, sizeable, bright bedrooms, laundry/storage room and a family or bonus space. There is plenty of room for your large or growing family. It is fenced in with a rolling gate and storage shed at the back. All you and your family have to do is move in. Come see it and make it your own. Book your showing today.
- Basement Development Fully Finished
- Bathrooms 2
- Bathrooms (Full) 2
- Bedrooms 5
- Building Type Bi-Level
- Built In 2012
- Exterior Stucco
- Fireplace Other - See remarks
- Fireplace Fuel Electric
- Floor Space 944 sqft
- Gross Taxes $4,657.79
- Neighbourhood St James
- Property Type Residential, Single Family Detached
- Rental Equipment None
- School Division St James-Assiniboia (WPG 2)
- Tax Year 2025
- Features
- Main floor full bathroom
- No Pet Home
- Goods Included
- Dryer
- Dishwasher
- Refrigerator
- Stove
- Washer
- Parking Type
- Rear Drive Access
- Site Influences
- Back Lane
Rooms
| Level | Type | Dimensions |
|---|---|---|
| Main | Living Room | 9.67 ft x 13.42 ft |
| Dining Room | 7.17 ft x 10.75 ft | |
| Kitchen | 13.08 ft x 7.92 ft | |
| Four Piece Bath | 4.83 ft x 7.83 ft | |
| Primary Bedroom | 11.58 ft x 9.08 ft | |
| Bedroom | 11.58 ft x 7.33 ft | |
| Bedroom | 11.08 ft x 8.17 ft | |
| Basement | Family Room | 8.58 ft x 18.58 ft |
| Laundry Room | 11.33 ft x 11.17 ft | |
| Bedroom | 10.33 ft x 9.75 ft | |
| Bedroom | 8.42 ft x 9.42 ft | |
| Four Piece Bath | 8.83 ft x 4.83 ft |