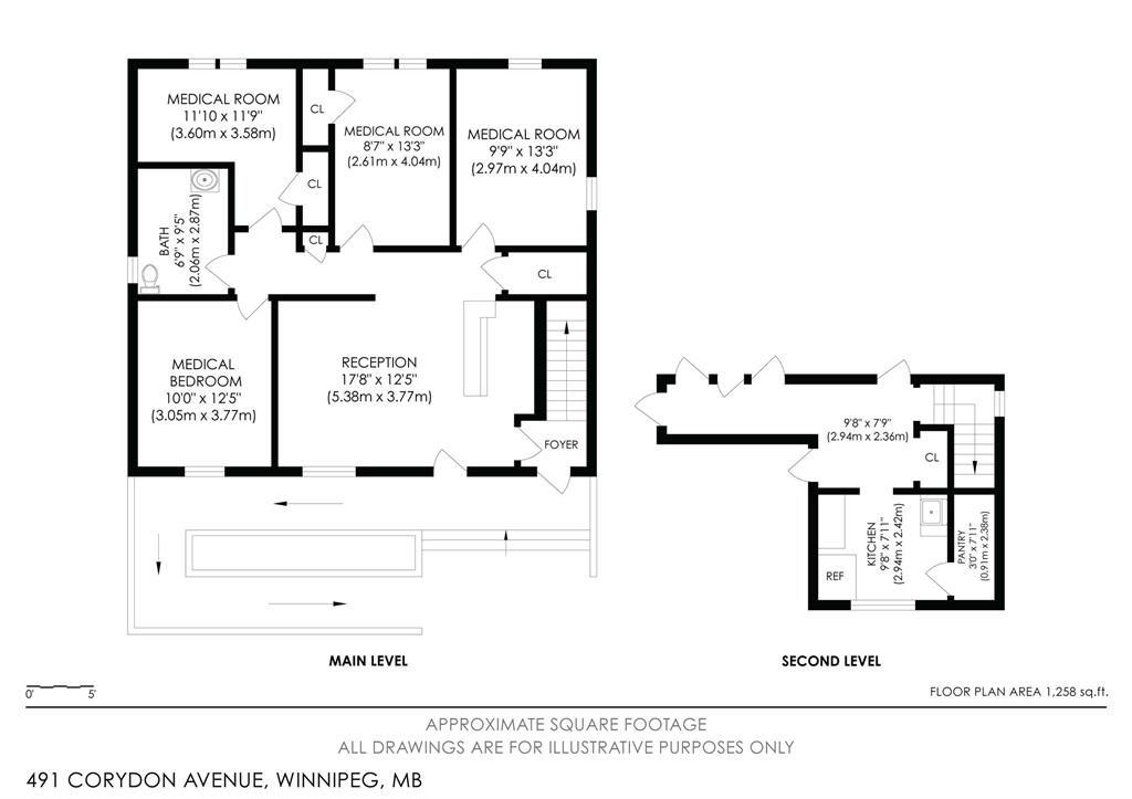
Offers as rec'd…Impressive 2,040 sq.ft. commercial property w/ immense potential! Fantastic location steps away from Confusion Corner, boasting high visibility & convenient access to transit & downtown. Currently home to a thriving wellness centre w/ a chiropractor’s office on the main flr & massage/therapy services upstairs fully leased. Over $6600. In rental income! Main flr can be occupied by purchaser. Priced to sell - fantastic investment w/ established tenants & strong cash flow from day one! This versatile property features a kitchenette, 2 bathrooms one on each flr, separate entrances & a spacious basement for storage, catering to a variety of commercial uses. Beautifully renovated, the property is complemented by an oversized parking lot & street parking for excellent accessibility. Fantastic future development potential w/ commercial on the main flr & multi-family residential opportunities upstairs - a unique chance to maximize value. Whether you seek an established medical business or envision a commercial/residential project, this remarkable property checks all the boxes. Don’t miss this exceptional chance to invest in a prime commercial location! Ask about LEASING OPPORTUNITY main floor

  • Building Type Two Storey
  • Built In 1954
  • Depth 120.00 ft
  • Frontage 50.00 ft
  • Gross Taxes $12,140.24
  • Property Type Commercial, Office Building for Sale
  • Tax Year 2025
Amenities
Fully Air Conditioned
Appliances Included
Basement
Accessibility Access
Accessibility Features – See Remarks
Natural Light
Separate Entrances
Storage
1 or More Washrooms
Window Coverings
Parking Type
Other remarks
Rear Drive Access
Visitor Stalls
Site Influences
Downtown
Street Exposure
High Traffic Location
Park/reserve
Public Transportation