Beautifully constructed 1,286 sqft home featuring premium finishes included as standard, with no upgrade costs. The bright, open-concept main floor boasts 9-foot ceilings and a modern kitchen with quartz countertops that extend into all bathrooms. Enjoy central A/C, already included, ensuring comfort in every season. Upstairs, the primary suite offers a 4-piece ensuite and walk-in closet, along with two additional bedrooms, another full bathroom, and a second-floor laundry room. The basement is prepared for future development with engineered floor joists for higher ceilings and oversized windows for natural light. Outside, this home includes a concrete front walkway, rear parking pad, wood steps, and full landscaping (sod and rock beds), all already included in the price. Experience superior quality, with plenty of inclusions, making this a move-in-ready new build. Call today for the complete features list or to arrange a private viewing.
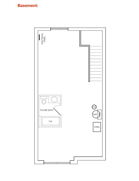
- Basement Development Insulated
- Bathrooms 3
- Bathrooms (Full) 2
- Bathrooms (Partial) 1
- Bedrooms 3
- Building Type Two Storey
- Built In 2026
- Depth 112.00 ft
- Exterior Composite, Vinyl
- Floor Space 1286 sqft
- Frontage 22.00 ft
- Neighbourhood Aurora at North Point
- Property Type Residential, Townhouse
- Rental Equipment None
- School Division Winnipeg (WPG 1)
- Tax Year 25
- Features
- Air Conditioning-Central
- High-Efficiency Furnace
- Heat recovery ventilator
- Laundry - Second Floor
- Smoke Detectors
- Sump Pump
- Parking Type
- Parking Pad
- Rear Drive Access
- Site Influences
- Back Lane
- Paved Street
- Playground Nearby
- Shopping Nearby
- Public Transportation
Rooms
| Level | Type | Dimensions |
|---|---|---|
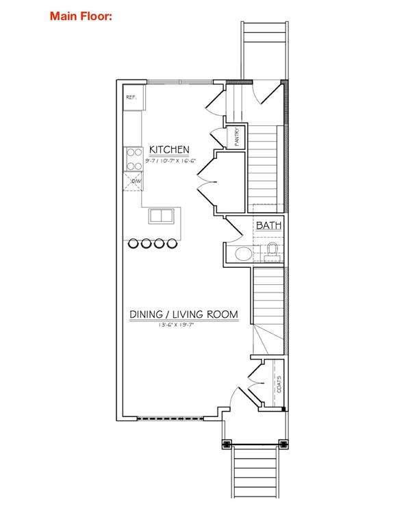
| Main | Living/Dining room | 13.5 ft x 19.58 ft |
| Kitchen | 10.58 ft x 16.5 ft | |
| Two Piece Bath | - | |
| Primary Bedroom | 11.67 ft x 11.5 ft | |
| Upper | Four Piece Ensuite Bath | - |
| Bedroom | 8.33 ft x 10 ft | |
| Bedroom | 8.33 ft x 10 ft | |
| Four Piece Bath | - |