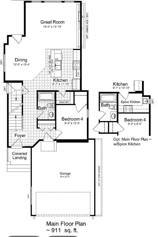
Welcome home to The Yvonne II, a fully functional 1765 sqft 4 bedroom 3 full bath home. Open concept main floor plan w/ 9' ceilings on main, a large kitchen island & Soho style cabinetry w/soft close drawers & 41" upper cabinets SS OTR Microwave hood-fan, LED DISC lights in Kitchen & Great Room, pendant lights over island & Decora switches. Main floor bedroom & full bath LVP Vinyl plank throughout main floor except bedroom to remain carpet. Side entrance to the basement AND 2nd floor Laundry. Upstairs features 3 more bedrooms & 2 full baths including the Primary bedroom which has an ensuite. Video is of a former show-home and all pictures do not include all options that may be shown. OPEN HOUSE 22 Ken Butchart Cres Monday to Thurs 5-8 pm & Weekends 1-5 pm for info and to see the show home of this floorplan.
- Basement Development Insulated
- Bathrooms 3
- Bathrooms (Full) 3
- Bedrooms 4
- Building Type Two Storey
- Built In 2025
- Exterior Stucco, Vinyl
- Floor Space 1765 sqft
- Frontage 32.00 ft
- Neighbourhood Devonshire Park
- Property Type Residential, Single Family Detached
- Rental Equipment None
- School Division River East Transcona (WPG 72)
- Tax Year 2025
- Features
- Central Exhaust
- Engineered Floor Joist
- Hood Fan
- High-Efficiency Furnace
- Heat recovery ventilator
- Laundry - Second Floor
- Main floor full bathroom
- Smoke Detectors
- Sump Pump
- Parking Type
- Double Attached
- Site Influences
- Flat Site
- No Back Lane
- Paved Street
Rooms
Level | Type | Dimensions |
---|---|---|
Main | Four Piece Bath | - |
Great Room | 16 ft x 13.83 ft | |
Kitchen | 9.58 ft x 11.83 ft | |
Dining Room | 12 ft x 10.33 ft | |
Bedroom | 9 ft x 10 ft | |
Upper | Four Piece Bath | - |
Four Piece Ensuite Bath | - | |
Primary Bedroom | 13.67 ft x 14.58 ft | |
Walk-in Closet | 7 ft x 5.42 ft | |
Bedroom | 9.67 ft x 10.33 ft | |
Bedroom | 10.25 ft x 12.42 ft | |
Laundry Room | - |